TO LET
Mount Ephraim, Tunbridge Wells, TN4
-
Make Enquiry
Make Enquiry
Please complete the form below and a member of staff will be in touch shortly.
- Floorplan
- Add To Shortlist
-
Send To Friend
Send details of Mount Ephraim, Tunbridge Wells, TN4 to a friend by completing the information below.
Property Features
- Stunning & exceptionally spacious private enclosed garden
- Private terrace
- Spacious Reception Room with exposed brickwork and inglenook feature
- 2 Bedrooms & 2 Bathrooms
- Private Entrance
- Permit Parking
- Situated walking distance to the centre of Tunbridge Wells
Description
Property Summary
Full Details
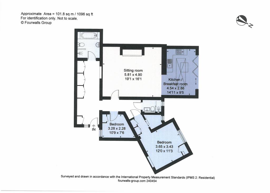
The Garden Flat is a surprisingly quiet and secluded apartment with direct access on to a private terrace and a stunning garden which is surprisingly spacious. The apartment is situated set back from Mount Ephraim on a small private crescent, which was once the home of the Duchess of Wellington, this imposing residence has a prominent position just next to The Common overlooking the town.
The property has its own entrance, which is located down a few steps to the side. The entrance hall is wide and fitted with extensive tall built in cupboards. The beautiful wooden floors are immediately striking as well as the character features like the carved window from the hallway looking into the expansive living room which has a decorative inglenook fireplace and exposed brick wall. This leads to a delightful kitchen breakfast room which has bifold doors to the private terrace with balustrade looking on to the private enclosed garden.
The bedrooms are separated from the living accommodation giving this the feel of a house. There are two bedrooms, one double bedroom with an attached dressing area and shower room and a further bedroom currently used as an office, and a further bathroom with a shower over the bath.
It is walking distance to the town centre, the popular shops and restaurants of The High Street & the historic Pantiles, The main line station is also within walking distance and offers commuter services to The City and West End in under an hour. Permit parking.
It is highly unusual to find such a remarkably spacious garden so close to the with an apartment and so close centre of town. It is available unfurnished and will be in high demand.
kitchen Breakfast Room with bifold doors
fittted kitchen Breakfast Room with bifold doors to the patio and garden
Spacious Living Room
Spacious Living Room with exposed brick inglenook and wooden floors, open to the kitchen breakfast room
Bedroom 1
Shower room
Shower room
study bed2
Bathroom
| Availabilities | availability | — | Yes | Properties | 7 |
| Categories | category | WordPress core | Yes | Posts | 7 |
| Commercial Property Types | commercial_property_type | — | Yes | Properties, Appraisals | 8 |
| Commercial Tenures | commercial_tenure | — | Yes | Properties | 2 |
| Furnished | furnished | — | Yes | Properties, Appraisals | 3 |
| Locations | location | — | Yes | Properties | 0 |
| Management Dates | management_key_date_type | — | Yes | Key Dates | 3 |
| Marketing Flags | marketing_flag | — | Yes | Properties | 2 |
| Media Tags | media_tag | TaxoPress | Yes | Media | 0 |
| Outside Spaces | outside_space | — | Yes | Properties, Appraisals | 2 |
| Parking | parking | — | Yes | Properties, Appraisals | 7 |
| Price Qualifiers | price_qualifier | — | Yes | Properties | 4 |
| Property Features | property_feature | — | Yes | Properties | 0 |
| Property Types | property_type | — | Yes | Properties, Appraisals | 25 |
| Sale By | sale_by | — | Yes | Properties | 3 |
| Tags | post_tag | WordPress core | Yes | Posts | 1 |
| Tenures | tenure |

TO LET
Download brochure
-
Make Enquiry
Make Enquiry
Please complete the form below and a member of staff will be in touch shortly.
- Floorplan
- Add To Shortlist
-
Send To Friend
Send details of Mount Ephraim, Tunbridge Wells, TN4 to a friend by completing the information below.
Call agent:
What can you afford to rent?
Make an enquiry
Fill in the form and a team member will get in touch soon. Alternatively, contact us at the office below:
























