SOLD STC
Chantlers Hill, Paddock Wood, TN12
-
Make Enquiry
Make Enquiry
Please complete the form below and a member of staff will be in touch shortly.
- Floorplan
- Add To Shortlist
-
Send To Friend
Send details of Chantlers Hill, Paddock Wood, TN12 to a friend by completing the information below.
Property Features
- Viewing Highly Recommended
- Private Gated Driveway
- Sought After Location
- Large Garage & Store Sheds
- Extensive Gardens
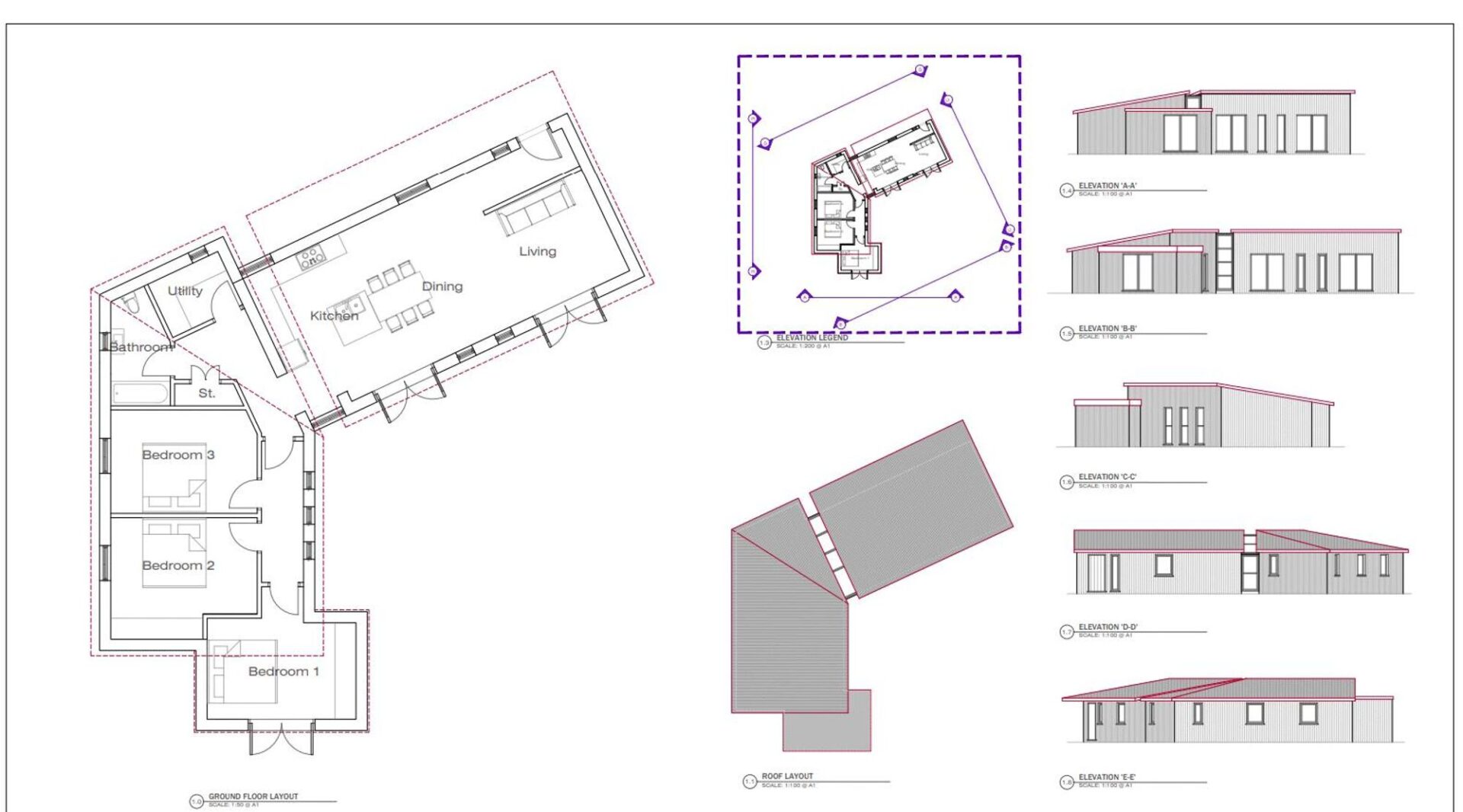
- Planning Granted Planning Application: 24/02429/FULL
- Close to Paddock Wood Town Centre & Mainline Station
- NO ONWARD CHAIN
- One Plot Of Land Totalling Approx 1/3 Acre (TBV)
Description
Full Details
GUIDE PRICE £350,000 - £375,000
Unique opportunity to purchase a wonderful plot of land with planning permission Planning Application: 24/02429/FULL in an enviable rural position near the popular village of Brenchley, Matfield and Paddock Wood. Chantlers Hill is a sought-after road on the fringes of Brenchley village & Paddock Wood.
This particular plot has its own driveway, new boundary lines and title numbers will be created and finalised with new purchaser.
Paddock Wood has a Waitrose supermarket conveniently located near the mainline station and several other shops, whilst Tonbridge & Tunbridge Wells offers a wide choice of amenities including two theatres, a multiplex cinema, health clubs, restaurants, cafes, bars and hotels. Neighboring villages of Brenchley & Matfiled offers, doctors' surgery and dispensary, along with a fine church, primary school, local pubs and a village club. There are many highly regarded schools in the area, both state and private. An excellent primary school, Brenchley and Matfiled Primary, is a few minutes up the road.
There are many highly regarded state and private schools in Tonbridge and Tunbridge Wells and the surrounding area. Secondary options also include several highly sought-after grammar schools, including Tunbridge Wells Girls Grammar School, Tunbridge Wells Boys Grammar, Tonbridge Grammar School for Girls, Tonbridge School, Weald of Kent Grammar, Judd and Skinners Paddock Wood station has mainline services to London Charing Cross (via London Bridge and Waterloo East) and to London Cannon Street, services from 52 minutes. About four miles away is the A21 dual-carriageway which links directly to the M25 London orbital motorway and thereby a national motorway network, Gatwick and Heathrow airports
Agents Note* The Boundary lines have not been finalised yet and could be subject to change. Pictured is a proposed idea in red outline. Grey squares outline the garage, chalet and stores.
Use our free stamp duty calculator to see how much stamp duty you would need to pay on this property.
| Availabilities | availability | — | Yes | Properties | 7 |
| Categories | category | WordPress core | Yes | Posts | 7 |
| Commercial Property Types | commercial_property_type | — | Yes | Properties, Appraisals | 8 |
| Commercial Tenures | commercial_tenure | — | Yes | Properties | 2 |
| Furnished | furnished | — | Yes | Properties, Appraisals | 3 |
| Locations | location | — | Yes | Properties | 0 |
| Management Dates | management_key_date_type | — | Yes | Key Dates | 3 |
| Marketing Flags | marketing_flag | — | Yes | Properties | 2 |
| Media Tags | media_tag | TaxoPress | Yes | Media | 0 |
| Outside Spaces | outside_space | — | Yes | Properties, Appraisals | 2 |
| Parking | parking | — | Yes | Properties, Appraisals | 7 |
| Price Qualifiers | price_qualifier | — | Yes | Properties | 4 |
| Property Features | property_feature | — | Yes | Properties | 0 |
| Property Types | property_type | — | Yes | Properties, Appraisals | 25 |
| Sale By | sale_by | — | Yes | Properties | 3 |
| Tags | post_tag | WordPress core | Yes | Posts | 1 |
| Tenures | tenure |

SOLD STC
Download brochure
-
Make Enquiry
Make Enquiry
Please complete the form below and a member of staff will be in touch shortly.
- Floorplan
- Add To Shortlist
-
Send To Friend
Send details of Chantlers Hill, Paddock Wood, TN12 to a friend by completing the information below.
Call agent:
How much will it cost you to move?
Make an enquiry
Fill in the form and a team member will get in touch soon. Alternatively, contact us at the office below:






























































































