FOR SALE
Hawden Road, Tonbridge, TN9 1JN
£350,000
Guide Price
-
Make Enquiry
Make Enquiry
Please complete the form below and a member of staff will be in touch shortly.
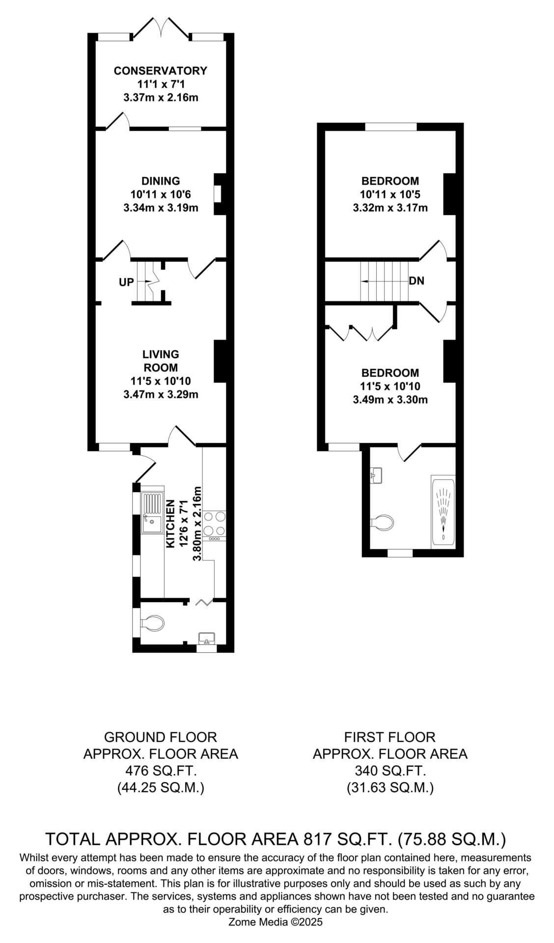
- Floorplan
- View Brochure
- Add To Shortlist
-
Send To Friend
Send details of Hawden Road, Tonbridge, TN9 1JN to a friend by completing the information below.
Terraced House
in Tonbridge
, Kent
2 Bedrooms
2 Reception Rooms
1 Bathrooms
Freehold
Property Features
- Two Bedrooms
- Period Terraced Family Home
- Sought After Slade - Central Tonbridge Location, Close to High Street, Coveted Schools
- First Floor Bathroom
- Two Reception Rooms
- Newly Installed Kitchen
- Garden Room
- Established Rear Garden
- Viewing Highly Recommended
- No Onward Chain
Description
Property Summary
GUIDE PRICE - £350,000 - £375,000
Offered for sale is this well presented two-bedroom terraced house situated in the popular and favored area of The Slade, tucked away in a quiet area of central Tonbridge. Internally, to the ground floor the property comprises newly installed kitchen, cloakroom WC, dining room, living room and garden room. To the first floor there are two double bedrooms and a family bathroom which is accessed off one of the bedrooms.
Externally there is an established rear garden to the rear with, mature borders and backing onto school playing fields and a large shed.
Tucked away from the Town Centre, the property is within easy reach for Tonbridge Mainline Station, coveted schools and High Street which offers a range of local shops, supermarkets, cafés, bars and restaurants. It is also in close proximity from the historic Tonbridge Castle with stunning river walks leading you through to the park and sportsground and onto the beautiful Haysden Country Park.
The property is being sold with no onward chain and an internal viewing is highly recommended.
Offered for sale is this well presented two-bedroom terraced house situated in the popular and favored area of The Slade, tucked away in a quiet area of central Tonbridge. Internally, to the ground floor the property comprises newly installed kitchen, cloakroom WC, dining room, living room and garden room. To the first floor there are two double bedrooms and a family bathroom which is accessed off one of the bedrooms.
Externally there is an established rear garden to the rear with, mature borders and backing onto school playing fields and a large shed.
Tucked away from the Town Centre, the property is within easy reach for Tonbridge Mainline Station, coveted schools and High Street which offers a range of local shops, supermarkets, cafés, bars and restaurants. It is also in close proximity from the historic Tonbridge Castle with stunning river walks leading you through to the park and sportsground and onto the beautiful Haysden Country Park.
The property is being sold with no onward chain and an internal viewing is highly recommended.
Stamp duty
Use our free stamp duty calculator to see how much stamp duty you would need to pay on this property.
| Availabilities | availability | — | Yes | Properties | 7 |
| Categories | category | WordPress core | Yes | Posts | 7 |
| Commercial Property Types | commercial_property_type | — | Yes | Properties, Appraisals | 8 |
| Commercial Tenures | commercial_tenure | — | Yes | Properties | 2 |
| Furnished | furnished | — | Yes | Properties, Appraisals | 3 |
| Locations | location | — | Yes | Properties | 0 |
| Management Dates | management_key_date_type | — | Yes | Key Dates | 3 |
| Marketing Flags | marketing_flag | — | Yes | Properties | 2 |
| Media Tags | media_tag | TaxoPress | Yes | Media | 0 |
| Outside Spaces | outside_space | — | Yes | Properties, Appraisals | 2 |
| Parking | parking | — | Yes | Properties, Appraisals | 7 |
| Price Qualifiers | price_qualifier | — | Yes | Properties | 4 |
| Property Features | property_feature | — | Yes | Properties | 0 |
| Property Types | property_type | — | Yes | Properties, Appraisals | 25 |
| Sale By | sale_by | — | Yes | Properties | 3 |
| Tags | post_tag | WordPress core | Yes | Posts | 1 |
| Tenures | tenure |
GUIDE PRICE – £350,000 – £375,000
Offered for sale is this well presented two-bedroom terraced house situated in the popular and favored area of The Slade, tucked away in a quiet area of central Tonbridge. Internally, to the ground floor the property comprises newly installed kitchen, cloakroom WC, dining room, living room and garden room. To the first floor there are two double bedrooms and a family bathroom which is accessed off one of the bedrooms.
Externally there is an established rear garden to the rear with, mature borders and backing onto school playing fields and a large shed. Tucked away from the Town Centre, the property is within easy reach for Tonbridge Mainline Station, coveted schools and High Street which offers a range of local shops, supermarkets, cafés, bars and restaurants. It is also in close proximity from the historic Tonbridge Castle with stunning river walks leading you through to the park and sportsground and onto the beautiful Haysden Country Park. The property is being sold with no onward chain and an internal viewing is highly recommended.
Offered for sale is this well presented two-bedroom terraced house situated in the popular and favored area of The Slade, tucked away in a quiet area of central Tonbridge. Internally, to the ground floor the property comprises newly installed kitchen, cloakroom WC, dining room, living room and garden room. To the first floor there are two double bedrooms and a family bathroom which is accessed off one of the bedrooms.
Externally there is an established rear garden to the rear with, mature borders and backing onto school playing fields and a large shed. Tucked away from the Town Centre, the property is within easy reach for Tonbridge Mainline Station, coveted schools and High Street which offers a range of local shops, supermarkets, cafés, bars and restaurants. It is also in close proximity from the historic Tonbridge Castle with stunning river walks leading you through to the park and sportsground and onto the beautiful Haysden Country Park. The property is being sold with no onward chain and an internal viewing is highly recommended.
£350,000
Guide Price
-
Make Enquiry
Make Enquiry
Please complete the form below and a member of staff will be in touch shortly.
- Floorplan
- View Brochure
- Add To Shortlist
-
Send To Friend
Send details of Hawden Road, Tonbridge, TN9 1JN to a friend by completing the information below.
Call agent:
How much will it cost you to move?
Make an enquiry
Fill in the form and a team member will get in touch soon. Alternatively, contact us at the office below:
Tonbridge
132 High Street, Tonbridge, Kent, TN9 1BB
















































































