SOLD STC
BRAND NEW DETACHED FAMILY HOME – Pepingstraw Close, Offham, West Malling, ME19 5PB
£1,250,000
-
Make Enquiry
Make Enquiry
Please complete the form below and a member of staff will be in touch shortly.
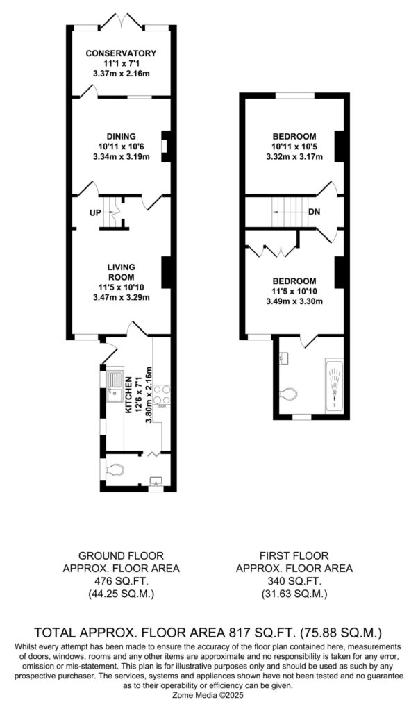
- Floorplan
- View Brochure
- Add To Shortlist
-
Send To Friend
Send details of BRAND NEW DETACHED FAMILY HOME – Pepingstraw Close, Offham, West Malling, ME19 5PB to a friend by completing the information below.
Detached HouseNew Build
in Offham, West Malling
, Kent
4 Bedrooms
2 Reception Rooms
3 Bathrooms
Freehold
Property Features
- AVAILABLE NOW
- Private Gated Development of Four Detached Executive Family Homes
- Brand New - High Specification
- 10yr Build Guarantee
- Sought After Village Location
- Open Plan Living
- Two En Suites & Family Bathroom
- Detached Double Garage
- Rear Gardens & Additional Paddock
- No Onward Chain
Description
Property Summary
** AVAILABLE NOW - LAST TWO REMAINING **
Welcome to an exclusive opportunity to own one of four newly built detached executive homes, nestled within a private gated development in the highly sought-after village of Offham. Perfectly positioned to enjoy the charm of village living while benefiting from the nearby conveniences of West Malling and Kings Hill, these exceptional homes offer the ideal blend of luxury, location, and lifestyle. With two homes already sold prior to marketing, only two remain! Do not miss your chance to secure one of these outstanding family homes.
Each property has been finished to an impeccable standard, boasting a high-specification finish throughout. Designed with modern family living in mind, the homes feature spacious open-plan layouts. Accommodation comprises entrance, large sitting room with feature fire, second reception room study / playroom, cloakroom WC, utility room and modern kitchen / dining / family room with bi folding doors overlooking the garden. To the first floor family bathroom, four double bedrooms and en suite shower rooms.
Externally, further highlights include detached double garages, generous gardens, and the rare advantage of an additional paddock—offering potential for a variety of uses. The inclusion of an air source heat pump, supports energy efficiency and sustainable living.
The development benefits from excellent road and rail links, with links to London within the hour and is situated close to a selection of coveted schools, making it perfect for families.
These stunning homes are available now from £1,250,0000! Early viewing is highly recommended.
Comprehensive Shopping: West Malling (1.8 miles) offering a multitude of shops, pubs and restaurants, Borough Green (3.4 miles), Kings Hill (2.6 miles)
Mainline Rail Services: Borough Green & Wrotham or West Malling.
Primary Schools: Offham, West Malling, Platt and Ryarsh.
State/Grammar Schools: Maidstone, Tonbridge, Sevenoaks, Tunbridge Wells and Dartford.
Private Schools: Sutton Valence in Maidstone. The Preparatory Schools at Somerhill. Tonbridge and Sevenoaks Public Schools.
Leisure Facilities: David Lloyd Fitness & Leisure Centre in Kings Hill, Offham Tennis and Cricket clubs and the Reynolds Retreat Spa in Borough Green. Leisure centres in Tonbridge and Maidstone. Gym and pool at the Holiday Inn, Wrotham Heath. Offham tennis club.
All distances are approximate.
Welcome to an exclusive opportunity to own one of four newly built detached executive homes, nestled within a private gated development in the highly sought-after village of Offham. Perfectly positioned to enjoy the charm of village living while benefiting from the nearby conveniences of West Malling and Kings Hill, these exceptional homes offer the ideal blend of luxury, location, and lifestyle. With two homes already sold prior to marketing, only two remain! Do not miss your chance to secure one of these outstanding family homes.
Each property has been finished to an impeccable standard, boasting a high-specification finish throughout. Designed with modern family living in mind, the homes feature spacious open-plan layouts. Accommodation comprises entrance, large sitting room with feature fire, second reception room study / playroom, cloakroom WC, utility room and modern kitchen / dining / family room with bi folding doors overlooking the garden. To the first floor family bathroom, four double bedrooms and en suite shower rooms.
Externally, further highlights include detached double garages, generous gardens, and the rare advantage of an additional paddock—offering potential for a variety of uses. The inclusion of an air source heat pump, supports energy efficiency and sustainable living.
The development benefits from excellent road and rail links, with links to London within the hour and is situated close to a selection of coveted schools, making it perfect for families.
These stunning homes are available now from £1,250,0000! Early viewing is highly recommended.
Comprehensive Shopping: West Malling (1.8 miles) offering a multitude of shops, pubs and restaurants, Borough Green (3.4 miles), Kings Hill (2.6 miles)
Mainline Rail Services: Borough Green & Wrotham or West Malling.
Primary Schools: Offham, West Malling, Platt and Ryarsh.
State/Grammar Schools: Maidstone, Tonbridge, Sevenoaks, Tunbridge Wells and Dartford.
Private Schools: Sutton Valence in Maidstone. The Preparatory Schools at Somerhill. Tonbridge and Sevenoaks Public Schools.
Leisure Facilities: David Lloyd Fitness & Leisure Centre in Kings Hill, Offham Tennis and Cricket clubs and the Reynolds Retreat Spa in Borough Green. Leisure centres in Tonbridge and Maidstone. Gym and pool at the Holiday Inn, Wrotham Heath. Offham tennis club.
All distances are approximate.
Stamp duty
Use our free stamp duty calculator to see how much stamp duty you would need to pay on this property.
| Availabilities | availability | — | Yes | Properties | 7 |
| Categories | category | WordPress core | Yes | Posts | 7 |
| Commercial Property Types | commercial_property_type | — | Yes | Properties, Appraisals | 8 |
| Commercial Tenures | commercial_tenure | — | Yes | Properties | 2 |
| Furnished | furnished | — | Yes | Properties, Appraisals | 3 |
| Locations | location | — | Yes | Properties | 0 |
| Management Dates | management_key_date_type | — | Yes | Key Dates | 3 |
| Marketing Flags | marketing_flag | — | Yes | Properties | 2 |
| Media Tags | media_tag | TaxoPress | Yes | Media | 0 |
| Outside Spaces | outside_space | — | Yes | Properties, Appraisals | 2 |
| Parking | parking | — | Yes | Properties, Appraisals | 7 |
| Price Qualifiers | price_qualifier | — | Yes | Properties | 4 |
| Property Features | property_feature | — | Yes | Properties | 0 |
| Property Types | property_type | — | Yes | Properties, Appraisals | 25 |
| Sale By | sale_by | — | Yes | Properties | 3 |
| Tags | post_tag | WordPress core | Yes | Posts | 1 |
| Tenures | tenure |
** AVAILABLE NOW – LAST TWO REMAINING **
Welcome to an exclusive opportunity to own one of four newly built detached executive homes, nestled within a private gated development in the highly sought-after village of Offham. Perfectly positioned to enjoy the charm of village living while benefiting from the nearby conveniences of West Malling and Kings Hill, these exceptional homes offer the ideal blend of luxury, location, and lifestyle. With two homes already sold prior to marketing, only two remain! Do not miss your chance to secure one of these outstanding family homes.
Each property has been finished to an impeccable standard, boasting a high-specification finish throughout. Designed with modern family living in mind, the homes feature spacious open-plan layouts. Accommodation comprises entrance, large sitting room with feature fire, second reception room study / playroom, cloakroom WC, utility room and modern kitchen / dining / family room with bi folding doors overlooking the garden. To the first floor family bathroom, four double bedrooms and en suite shower rooms.
Externally, further highlights include detached double garages, generous gardens, and the rare advantage of an additional paddock—offering potential for a variety of uses. The inclusion of an air source heat pump, supports energy efficiency and sustainable living. The development benefits from excellent road and rail links, with links to London within the hour and is situated close to a selection of coveted schools, making it perfect for families.
These stunning homes are available now from £1,250,0000! Early viewing is highly recommended.
Comprehensive Shopping: West Malling (1.8 miles) offering a multitude of shops, pubs and restaurants, Borough Green (3.4 miles), Kings Hill (2.6 miles)
Mainline Rail Services: Borough Green & Wrotham or West Malling. Primary Schools: Offham, West Malling, Platt and Ryarsh.
State/Grammar Schools: Maidstone, Tonbridge, Sevenoaks, Tunbridge Wells and Dartford.
Private Schools: Sutton Valence in Maidstone. The Preparatory Schools at Somerhill. Tonbridge and Sevenoaks Public Schools.
Leisure Facilities: David Lloyd Fitness & Leisure Centre in Kings Hill, Offham Tennis and Cricket clubs and the Reynolds Retreat Spa in Borough Green. Leisure centres in Tonbridge and Maidstone. Gym and pool at the Holiday Inn, Wrotham Heath. Offham tennis club. All distances are approximate.
Welcome to an exclusive opportunity to own one of four newly built detached executive homes, nestled within a private gated development in the highly sought-after village of Offham. Perfectly positioned to enjoy the charm of village living while benefiting from the nearby conveniences of West Malling and Kings Hill, these exceptional homes offer the ideal blend of luxury, location, and lifestyle. With two homes already sold prior to marketing, only two remain! Do not miss your chance to secure one of these outstanding family homes.
Each property has been finished to an impeccable standard, boasting a high-specification finish throughout. Designed with modern family living in mind, the homes feature spacious open-plan layouts. Accommodation comprises entrance, large sitting room with feature fire, second reception room study / playroom, cloakroom WC, utility room and modern kitchen / dining / family room with bi folding doors overlooking the garden. To the first floor family bathroom, four double bedrooms and en suite shower rooms.
Externally, further highlights include detached double garages, generous gardens, and the rare advantage of an additional paddock—offering potential for a variety of uses. The inclusion of an air source heat pump, supports energy efficiency and sustainable living. The development benefits from excellent road and rail links, with links to London within the hour and is situated close to a selection of coveted schools, making it perfect for families.
These stunning homes are available now from £1,250,0000! Early viewing is highly recommended.
Comprehensive Shopping: West Malling (1.8 miles) offering a multitude of shops, pubs and restaurants, Borough Green (3.4 miles), Kings Hill (2.6 miles)
Mainline Rail Services: Borough Green & Wrotham or West Malling. Primary Schools: Offham, West Malling, Platt and Ryarsh.
State/Grammar Schools: Maidstone, Tonbridge, Sevenoaks, Tunbridge Wells and Dartford.
Private Schools: Sutton Valence in Maidstone. The Preparatory Schools at Somerhill. Tonbridge and Sevenoaks Public Schools.
Leisure Facilities: David Lloyd Fitness & Leisure Centre in Kings Hill, Offham Tennis and Cricket clubs and the Reynolds Retreat Spa in Borough Green. Leisure centres in Tonbridge and Maidstone. Gym and pool at the Holiday Inn, Wrotham Heath. Offham tennis club. All distances are approximate.
£1,250,000
-
Make Enquiry
Make Enquiry
Please complete the form below and a member of staff will be in touch shortly.
- Floorplan
- View Brochure
- Add To Shortlist
-
Send To Friend
Send details of BRAND NEW DETACHED FAMILY HOME – Pepingstraw Close, Offham, West Malling, ME19 5PB to a friend by completing the information below.
Call agent:
How much will it cost you to move?
Make an enquiry
Fill in the form and a team member will get in touch soon. Alternatively, contact us at the office below:
Tonbridge
132 High Street, Tonbridge, Kent, TN9 1BB






















































































